г. Днепр, пр. Гагарина, 63,
пн-пт 9.00-18.00
Заказать звонок
Рассчитать проект

Проект частного дома ДП-5

Общая площадь: 95 м2

Площадь застройки: 109 м2

Площадь террас: 13 м2

Технология
Комплектация
Цена 1 234 993 грн.

В цену входит:

— стоимость строительства дома;
— стоимость материалов с доставкой;
— проект дома в подарок — при строительстве с нами!

ДП-5 - 8

Хотите стильный дом с панорамными окнами? Обратите внимание на этот проект!

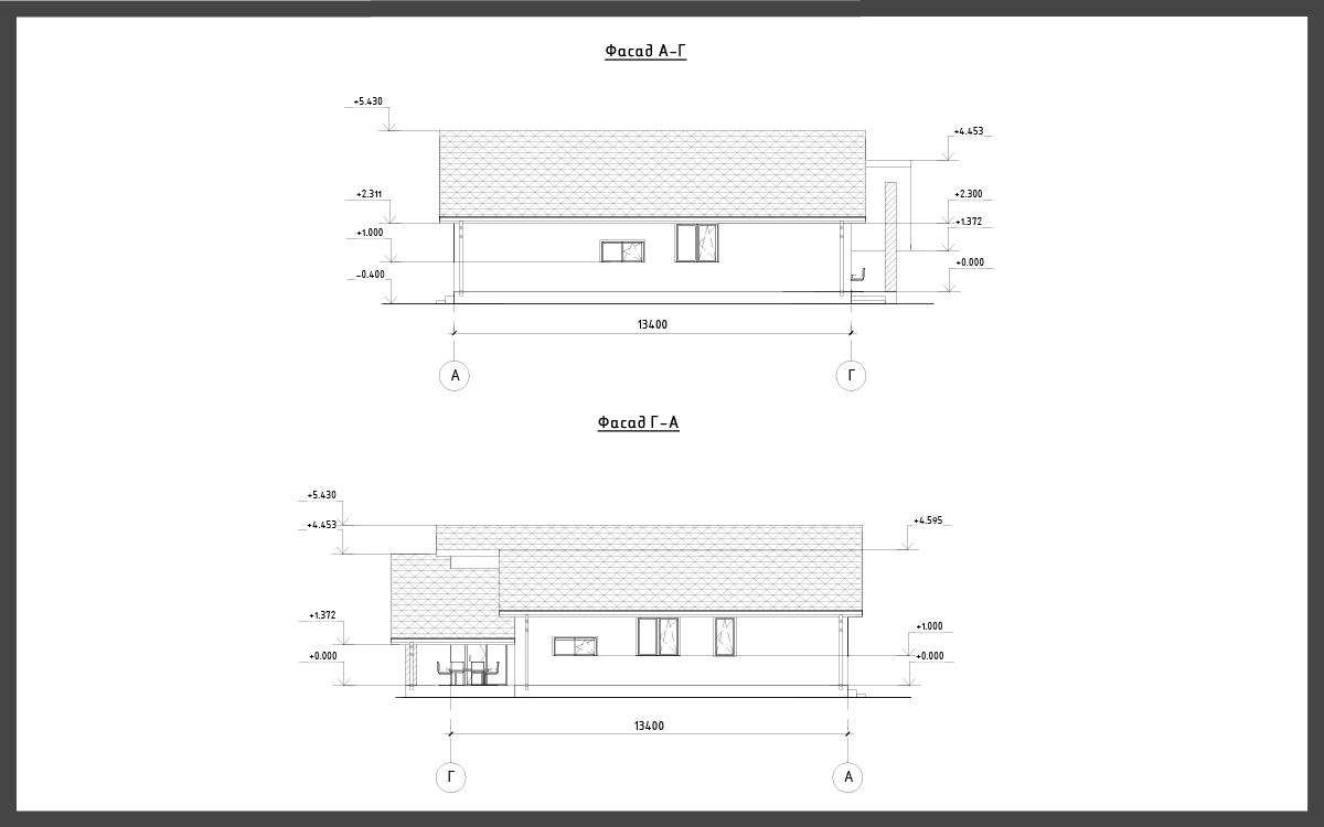
1-этажный дом подойдет как для пары, так и для семьи с детьми. Строение дома имеет наружные габариты 13,4 на 9 метров, площадь дома 109 кв.м. При входе в дом имеется тамбур, чтоб защитить от холодных ветров в непогоду. Далее из коридора — раздельный вход в три уютные спальни. В доме 2 санузла — все для Вашего удобства! Просторная кухня-столовая совмещена с гостиной (общая площадь 30 кв. м.), из которой возможно выйти на террасу. Также в доме имеется техническое помещение, где можно разместить насосную станцию, котел.

Получить каталог
Позвоним уже сегодня

Спасибо за ваше обращение! Мы скоро с Вами свяжемся.

Получить каталог

У вас есть земельный участок?

Когда вы планируете строиться?

Из чего хотите строить?

Спасибо за ваше обращение! Мы скоро с Вами свяжемся.

Заказать расчет

Спасибо за ваше обращение! Мы скоро с Вами свяжемся.

Получить бесплатную консультацию

Спасибо за ваше обращение! Мы скоро с Вами свяжемся.

Записаться на встречу

Спасибо за ваше обращение! Мы скоро с Вами свяжемся.

Узнайте стоимость вашего дома
1

Выберите материал сооружения

2

Укажите этажность

3

Укажите площадь

4

Последний шаг

квадратных метров
Далее

Спасибо за ваше обращение! Мы скоро с Вами свяжемся.

Назад
Получить КП

Спасибо за ваше обращение! Мы скоро с Вами свяжемся.

Комплектации
Комплектации
Комфорт Люкс
Проект
Эскизный проект
3D-визуализация ×
Фундамент
Ленточный фундамент с армированием, высота и ширина зависит от типа стен и результатов геологических изысканий
Песчаная подсыпка и гидроизоляция фундамента
Армированная стяжка пола 1-го этажа с утеплением
Закладные коммуникации в фундаменте
Каркас (для каркасной технологии)
Двойной брус основы, обработанный огнебиозащитой
Горизонтальная гидроизоляция под брус основы
Несущие стены каркаса — брус 145х45
Перекрытия брус 200х50
Комплект верхнего обвязочного бруса
Комплект креплений для монтажа каркаса
Несущие конструкции (газоблок, кирпич)
Обустройство каменной кладки:
— кирпич М100
— газоблок В 2,0 d400 UDK
Горизонтальная гидроизоляция — рубероид
Монолитный пояс
Перемычки железобетонные
Перекрытия монолитные/панельные/деревянные
Кровля
Комплект стропил из бруса 145х45 мм, обработанный огнебиозащитой
Комплект обрешетки: контр обрешетка 25х40 мм, обрешетка 25х100 мм (OSB-3 12 мм), ветровая доска
Супердиффузионная мембрана
Комплект крепления на крышу
Кровельный материал — металлочерепица (или битумная черепица)
Обустройство водосточной системы
Подшивка свесов кровли виниловым софитом
Тепло- звукоизоляция
Утепление внешних стен (внутреннее наполнение — для каркасной технологии): базальтовый утеплитель 150 мм
Звукоизоляция внутренних перестенков и перекрытия (для каркасной технологии) — базальтовый утеплитель 100 мм
Утепление крыши — базальтовый утеплитель 150 мм (для 1-эт дома утепл. перекр-я)
Отделочные работы
Наружное утепление стен — базальтовый утеплитель 50 мм ×
Наружная отделка фасада (сайдинг, блокхаус, фальш-брус, штукатурка «короед») ×
Внутренняя отделка стен и потолка (гипсокартон, деревянная вагонка, штукатурка стен гипсовой смесью) ×
Окна, двери
Входные двери металлические ×
Окна металлопластиковые 2-камерный стеклопакет ×
Услуги
Монтаж
* В просчет не включены: террасы, навесы, балконы, дымоходы, камины, лестница на 2 этаж, межкомнатные двери