— стоимость строительства дома;
— стоимость материалов с доставкой;
— проект дома в подарок — при строительстве с нами!

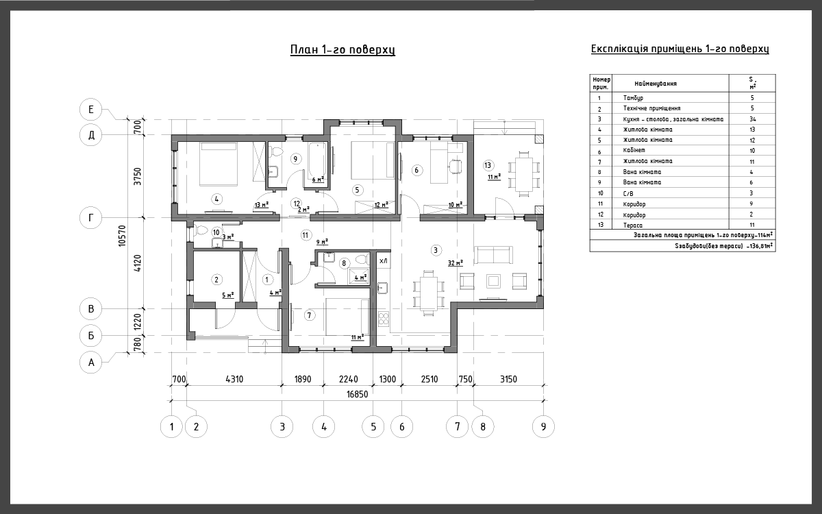
Большой 1-этажный дом площадью 137 кв.м. имеет наружные габариты 10,6 на 16,8 метров.
Вход в дом оформлен в виде крыльца на 2 двери — вход в дом и техническое помещение (удобно для хозяйственных нужд). Из прихожей мы попадаем в большой коридор, где можно и детям разгуляться) Далее попадаем в огромную зону гостиной-столовой (32 кв.м.) с выходом на террасу.
В доме 3 просторные спальни, что позволит Вам не только разместиться самим, но и принимать гостей!
Также для удобства всех жителей дома — целых 3 санузла!
Для работы Вам пригодится просторный кабинет (10 кв.м.).
Обратите внимание, что любой типовой проект можно проработать по Вашим пожеланиям!