г. Днепр, пр. Гагарина, 63,
пн-пт 9.00-18.00
Заказать звонок
Рассчитать проект

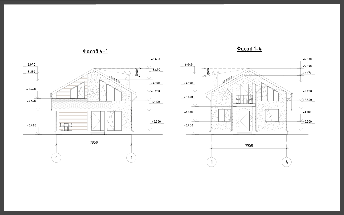
Проект частного дома ДП-9

Общая площадь: 120 м2

Площадь застройки: 74 м2

Площадь террас: 13 м2

Технология
Комплектация
Цена 1 138 057 грн.

В цену входит:

— стоимость строительства дома;
— стоимость материалов с доставкой;
— проект дома в подарок — при строительстве с нами!

ДП-9 - 11

Интересное предложение для Вас!

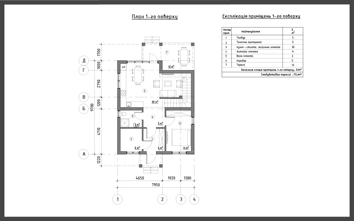
Представляем проект современного 2-этажного дома с мансардным 2 этажом площадью 147 кв.м. Строение дома имеет наружные габариты 9,7 на 7,95 метров. Нижний уровень дома состоит из крыльца, тамбура, технического помещения, где можно разместить насосную станцию, котел. Далее расположена обособленная спальня, санузел, а из коридорчика открывается вход в шикарную зону гостиной-столовой (30 кв.м.) с выходом на обеденную террасу.

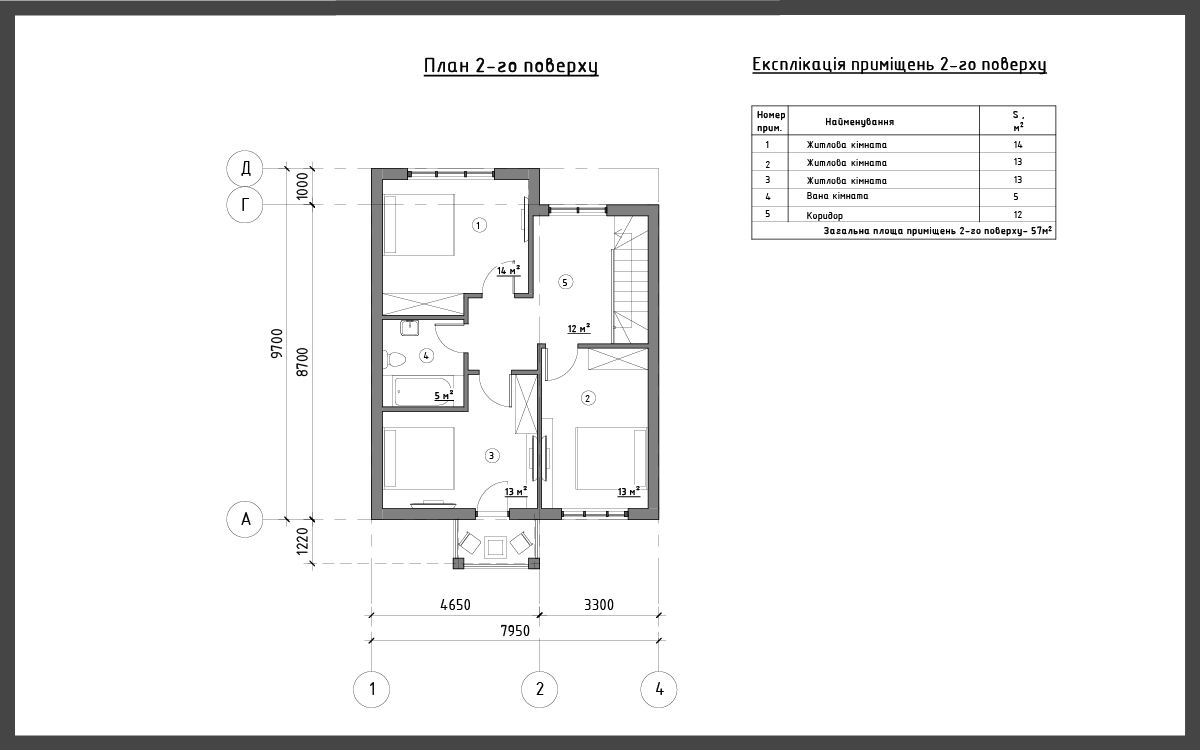
На втором этаже расположены 3 просторные спальни, что позволит разместить семью и принять немало гостей! Также для Вашего комфорта — вместительная ванная комната.

Получить каталог
Позвоним уже сегодня

Спасибо за ваше обращение! Мы скоро с Вами свяжемся.

Получить каталог

У вас есть земельный участок?

Когда вы планируете строиться?

Из чего хотите строить?

Спасибо за ваше обращение! Мы скоро с Вами свяжемся.

Заказать расчет

Спасибо за ваше обращение! Мы скоро с Вами свяжемся.

Получить бесплатную консультацию

Спасибо за ваше обращение! Мы скоро с Вами свяжемся.

Записаться на встречу

Спасибо за ваше обращение! Мы скоро с Вами свяжемся.

Узнайте стоимость вашего дома
1

Выберите материал сооружения

2

Укажите этажность

3

Укажите площадь

4

Последний шаг

квадратных метров
Далее

Спасибо за ваше обращение! Мы скоро с Вами свяжемся.

Назад
Получить КП

Спасибо за ваше обращение! Мы скоро с Вами свяжемся.

Комплектации
Комплектации
Комфорт Люкс
Проект
Эскизный проект
3D-визуализация ×
Фундамент
Ленточный фундамент с армированием, высота и ширина зависит от типа стен и результатов геологических изысканий
Песчаная подсыпка и гидроизоляция фундамента
Армированная стяжка пола 1-го этажа с утеплением
Закладные коммуникации в фундаменте
Каркас (для каркасной технологии)
Двойной брус основы, обработанный огнебиозащитой
Горизонтальная гидроизоляция под брус основы
Несущие стены каркаса — брус 145х45
Перекрытия брус 200х50
Комплект верхнего обвязочного бруса
Комплект креплений для монтажа каркаса
Несущие конструкции (газоблок, кирпич)
Обустройство каменной кладки:
— кирпич М100
— газоблок В 2,0 d400 UDK
Горизонтальная гидроизоляция — рубероид
Монолитный пояс
Перемычки железобетонные
Перекрытия монолитные/панельные/деревянные
Кровля
Комплект стропил из бруса 145х45 мм, обработанный огнебиозащитой
Комплект обрешетки: контр обрешетка 25х40 мм, обрешетка 25х100 мм (OSB-3 12 мм), ветровая доска
Супердиффузионная мембрана
Комплект крепления на крышу
Кровельный материал — металлочерепица (или битумная черепица)
Обустройство водосточной системы
Подшивка свесов кровли виниловым софитом
Тепло- звукоизоляция
Утепление внешних стен (внутреннее наполнение — для каркасной технологии): базальтовый утеплитель 150 мм
Звукоизоляция внутренних перестенков и перекрытия (для каркасной технологии) — базальтовый утеплитель 100 мм
Утепление крыши — базальтовый утеплитель 150 мм (для 1-эт дома утепл. перекр-я)
Отделочные работы
Наружное утепление стен — базальтовый утеплитель 50 мм ×
Наружная отделка фасада (сайдинг, блокхаус, фальш-брус, штукатурка «короед») ×
Внутренняя отделка стен и потолка (гипсокартон, деревянная вагонка, штукатурка стен гипсовой смесью) ×
Окна, двери
Входные двери металлические ×
Окна металлопластиковые 2-камерный стеклопакет ×
Услуги
Монтаж
* В просчет не включены: террасы, навесы, балконы, дымоходы, камины, лестница на 2 этаж, межкомнатные двери