– вартість будівництва будинку;
– вартість матеріалів з доставкою;
– проект будинку (ескіз намірів забудови).

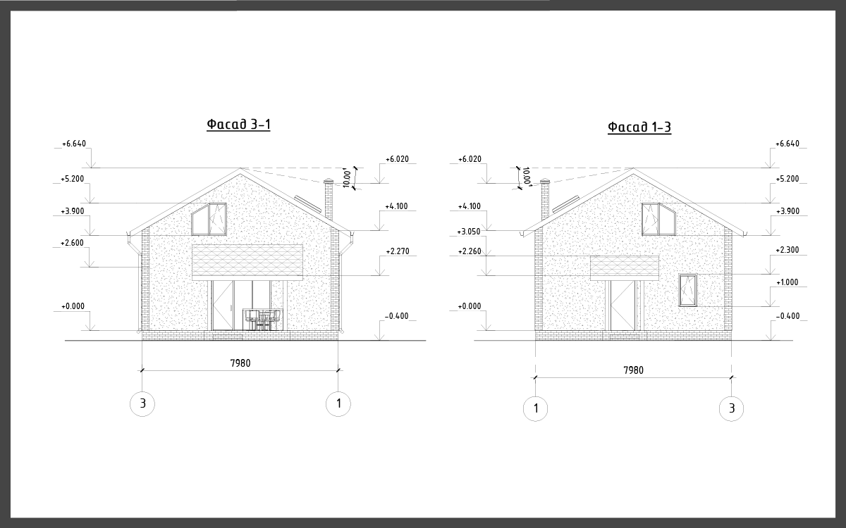
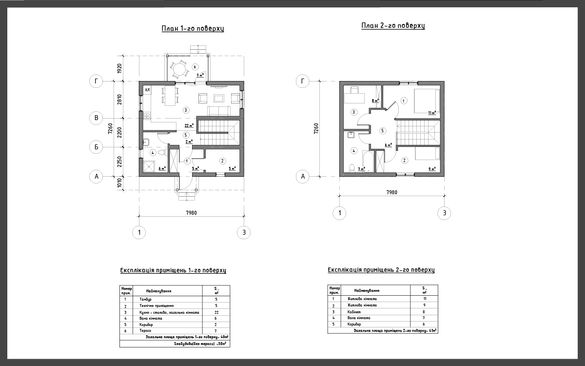
Цей 2-поверховий будиночок з мансардним поверхом підійде як для дачі, так і для постійного проживання.
Будинок досить компактний зовні (габарити 7 на 8 м), проте має пристойну площу забудови 116 кв.м. Висота стель 2,6 м. У будинку 2 спальні, 2 санвузли і просторий кабінет (8 кв.м.). На першому поверсі — містка кухня-їдальня, поєднана з вітальнею — загальна площа 22 кв.м. з виходом на терасу. Також в будинку є технічне приміщення, де можна розмістити насосну станцію, котел.
Зверніть увагу, що будь-який типовий проект можна опрацювати за Вашими вимогами!