– вартість будівництва будинку;
– вартість матеріалів з доставкою;
– проект будинку (ескіз намірів забудови).

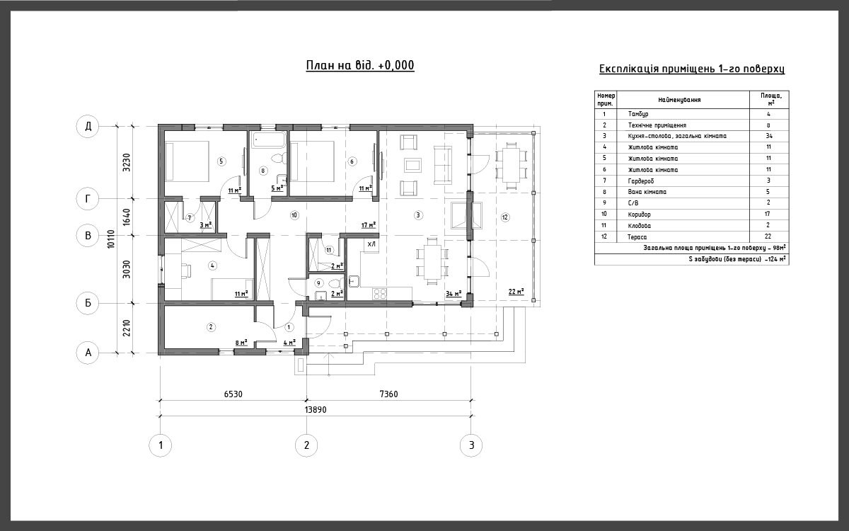
Сучасний просторий 1-поверховий будинок підійде як для пари, так і для великої родини!
Площа будинку — 124 кв.м., має зовнішні габарити 14 на 10 метрів.
У будинку 3 ергономічно сплановані спальні, що дозволить Вам не тільки розміститися самим, але і приймати гостей! Між спальнями спланована невелика гардеробна. Також для зручності всіх мешканців будинку — 2 санвузли.
Для комфортного проведення часу всієї родини — простора зона вітальні-їдальні (34 кв.м.) з виходом на величезну літню терасу (22 кв.м.).
Також в будинку є технічне приміщення, де можна розмістити насосну станцію, котел. І комора для всіх господарських потреб.